O ponto de virada
Aulas 0.1–0.3: você entende por que CAD não é decorar comandos, aprende o fluxo 10×1 e prepara template + layers para não travar.
Método 10×1: 10 comandos. 1 projeto completo.
Transforme rascunhos feitos à mão em projetos completos de engenharia usando apenas os comandos essenciais — com um fluxo direto do início ao fim.
Você não precisa dominar o AutoCAD inteiro para desenvolver projetos completos.
Na prática, a maior parte dos desenhos técnicos usa sempre os mesmos comandos — o problema é não saber quais usar e em que ordem. O Método 10×1 resolve isso com um único fluxo de produção.
Você aprende uma única sequência de produção que transforma um rascunho feito à mão em um projeto técnico completo usando apenas os comandos essenciais — com menos retrabalho e mais clareza.


O que você já consegue entregar em poucas horas
Um único fluxo. Um projeto completo. Sem decorar centenas de comandos.
Método 10×1: essencial + sequência certa + prática real.
O método é simples: seguir a ordem correta..
O ponto de virada
Aulas 0.1–0.3: você entende por que CAD não é decorar comandos, aprende o fluxo 10×1 e prepara template + layers para não travar.
Começar certo é metade do caminho
Aula 01: organização técnica do projeto — base limpa e padronizada para desenhar com método (sem bagunça e sem retrabalho).
Do rascunho ao CAD
Aulas 01–02: leitura do rascunho (pensar antes de traçar) + traçado base com LINE para começar seguro — sem refazer.
Linhas viram paredes
Aula 01: dando corpo ao desenho — paredes e paralelismo com OFFSET para um desenho consistente e técnico.
Desenho limpo é desenho profissional
Aula 01: limpeza técnica do desenho — TRIM, EXTEND e encontros corretos para o projeto parar de “parecer rascunho”.
Quando o método começa a fluir
Aula 01: repetindo o método — desenvolvimento do segundo pavimento com consistência, ritmo e sem retrabalho.
Projeto que se explica sozinho
Aula 01: blocos e padronização — informação e leitura no projeto para ele ficar claro, técnico e com cara de profissional.
Aqui o desenho vira projeto técnico
Aulas 01–02: lógica da cotagem + prática com layer correto e DIMLINEAR para deixar o projeto executável e confiável.
A diferença entre “feito” e “bem feito”
Aulas 01–02: hachura como leitura gráfica (refino final) + validação técnica do projeto com o comando AREA.
Tudo começa a se conectar
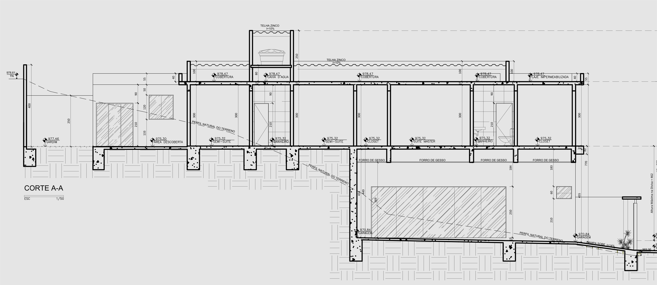
Aulas 01–03: revisão do processo + cortes A-A e B-B (fechando o técnico) + fixação do método para você repetir em outros projetos.
Fechamento + aula bônus
Aula 10: fechamento do curso e bônus final — revisão, entrega e próximos passos para aplicar o método em novos projetos.
Um projeto completo, com entregáveis reais — você aprende fazendo.
Curso completo
AutoCAD em 10 Comandos com o Método 10×1 (sequência do início ao fim).
Projeto completo do zero
Planta + cortes, com aplicação prática do essencial.
Checklist de revisão e entrega
Para finalizar o projeto com clareza, legibilidade e padrão.
PDF do Método 10×1
A sequência de produção para consultar sempre (rápido e direto).
BÔNUS — Template de layers básico + padrão de impressão
Arquivo base com layers organizados e configuração inicial para começar com padrão.
BÔNUS — Arquivo exemplo (DWG) do projeto do curso
Projeto exemplo para estudar, adaptar e usar como referência.
Você recebe pronto para usar. Não é só teoria — é método + projeto + templates para aplicar imediatamente.
Respostas diretas para tirar dúvidas e reduzir objeções.
Não. O curso foi criado para iniciantes funcionais e para quem já tentou aprender AutoCAD, mas travou. Você não precisa dominar o software — o Método 10×1 ensina o essencial para produzir projetos completos.
É 100% prático. Você acompanha o processo completo: do rascunho feito à mão até o projeto técnico final no AutoCAD, aplicando os comandos em contexto real.
O método é direto e enxuto. A proposta é que você consiga aplicar no mesmo dia, sem aulas longas ou excesso de teoria.
Não — e esse é o diferencial. Você aprende a usar o essencial, organizado em uma sequência lógica que permite finalizar projetos completos com clareza e consistência.
Sim. O foco é produção de projetos técnicos legíveis e organizados, não exercícios isolados.
O acesso é online e fica disponível enquanto o curso estiver ativo na plataforma. Caso haja qualquer mudança na forma de acesso, os alunos serão avisados com antecedência.
Você tem 7 dias de garantia incondicional. Se não fizer sentido para você, basta solicitar o reembolso dentro desse prazo.
Uma formação convencional em AutoCAD normalmente exige tempo, prática e grande investimento. Aqui você vai direto no que importa: o essencial organizado em um único fluxo validado — o Método 10×1.
De R$ 297 por apenas
Pagamento único • Acesso imediato
Garantia incondicional de 7 dias
Você testa o método. Se não gostar, devolvemos 100% do valor dentro de 7 dias. Simples e direto.
Você não precisa aprender tudo. Você precisa aprender o que funciona.
O Método 10×1 foi criado para quem quer clareza, método e resultado prático: do rascunho ao projeto completo — com o essencial e a sequência certa.